Little by little ©
VIEW BAY
Apartments & penthouses, Black River, Républic of MAURITIUS
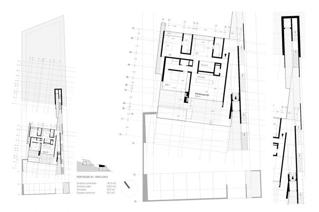
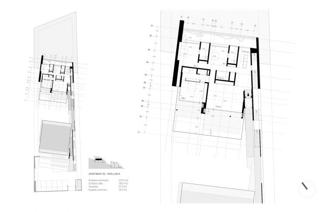
VIEW BAY est un ensemble de 6 APPARTEMENTS & PENTHOUSES haut de gamme, lové sur les flans de la montagne, face mer, de Rivière Noire à Maurice.
Son site d’exception, au paysage arboré offre une vue imprenable tel une invitation au rêve et au bien-être.
VIEW BAY, ce sont les yeux de la montagne sur l’infini océan, avec 2 pavillons d’architecture en cascades et ses résidences de qualité.
CLIENT
Privé
DATE
2020
PROGRAMME
Appartements & Penthouses
LIEU
Black River, MAURITIUS









